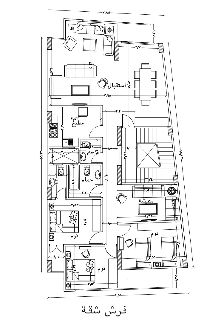
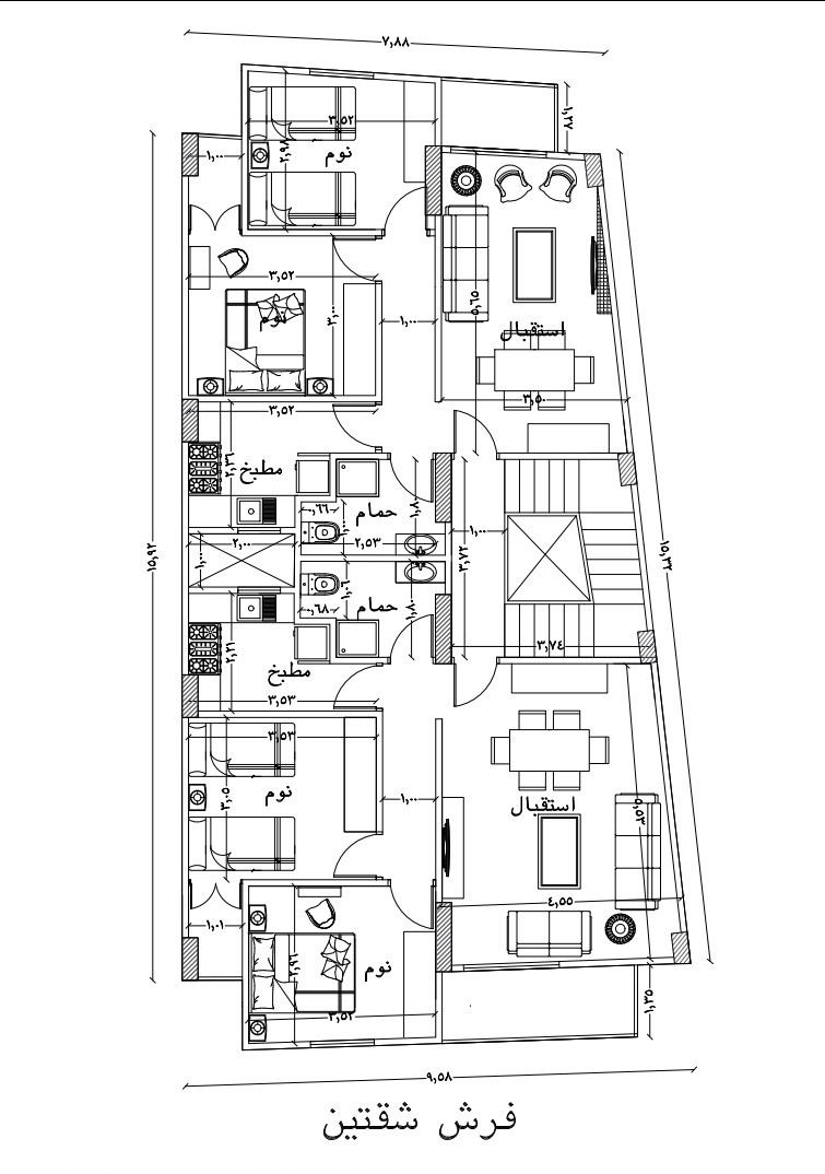
Residential Tower
Welcome to Innovate Residential architecture project! This dynamic and innovative endeavor is the designed to meet the unique needs of our clients . Situated in El-Mansoura city. this Residential project represents a collaborative effort to create a comforting and relaxing space that aligns with our client’s objectives.
Project Overview
Our residential architecture project is focused on designing a state-of-the-art residential building that serves as a comfortable and functional home for our client. With a commitment to innovation, sustainability, and aesthetic excellence, we are dedicated to creating a space that exceeds expectations and enhances the client’s quality of life.
Functionality
Our design approach prioritizes comfort and functionality, ensuring that your residential space is optimized for your lifestyle. We will carefully consider your daily routines, storage needs, and desired ambiance to create a home that feels both welcoming and efficient.
Key Features:
We’re excited to begin this residential architecture project and can’t wait to create a beautiful and comfortable home that our client will love. Stay tuned for updates as we bring this vision to life.